Menu
愛知県名古屋市北区駒止町2丁目 /テナント /196m2 /1階部分 /南向き /
| 賃料(共益費) | 300,000円 () |
|---|
| 間取り(面積) | テナント ( 196 m2) |
|---|
・ガスは引いてません。
・現状渡しになります。
・エレベーターは故障している為、使用出来ません。
Room Plan
| 間取タイプ | テナント | ||
|---|---|---|---|
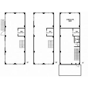
| 間取詳細 | 1F:50㎡ 2F:73㎡ 3F:73㎡ | ||
| 専有面積 | 196m2 | ||
| 方 位 | 南向き | ||
| 所在階 | 1階部分 | ||
| 賃 料 | 300,000円 | ||
| 管理費 | |||
| 敷 金 | なし | ||
| 礼 金 | なし | ||
| 状 態 |
空室
入居時期:即入 |
||
| 物件種別 | [事業用] 倉庫 |
|---|---|
| 所在地 | 愛知県名古屋市北区駒止町2丁目 |
| 交通 | 名城線「黒川」徒歩8分 |
| 構造 | 鉄骨造 地上3階 |
| 築年 | 1973年05月築 |
| 駐車場 | 敷地内駐車場/空き1台/無料駐車場付 |
○ 事務所利用可能 ○ フリーレント ○ 保証会社利用可能 ○ 保証会社利用必須 ○ DIY可能
○ トイレ(水洗)
○ 電気 ○ 水道(公営) ○ 排水(公共下水)
| 物件種別 | [事業用] 倉庫 |
|---|---|
| 物件名 | 駒止町2丁目倉庫 |
| 号室名 | 倉庫 |
| 所在地 | 愛知県名古屋市北区駒止町2丁目41 |
| 交通 | 名城線「黒川」徒歩8分 |
| 構造 | 鉄骨造地上3階 |
| 築年月 | 1973年05月 |
| 駐車場 | 敷地内駐車場/空き1台/無料駐車場付 |
| 町会費 | |
| 所在階 | 1階部分 |
| 方位 | 南向き   |
| 間取り |
[戸建] テナント 1F:50㎡ 2F:73㎡ 3F:73㎡ |
| 専有面積 | 196 m2 |
| 状態 | 空室 |
| 賃料 | 300,000円 |
| 共益費 | |
| 敷金 | なし |
| 礼金 | なし |
| 保証金 | 3ヶ月 |
| 償却・敷引 | 100% |
| 他諸経費 |
保険:保険要加入 エイ・ワン少額短期保険 2年契約 ※ 特記されているものだけを表示していますので、詳しくはお問い合わせの際にご確認ください。 |
| その他 | |
| オススメ |
○ ・ガスは引いてません。 ・現状渡しになります。 ・エレベーターは故障している為、使用出来ません。 |
| 設備・条件 | ○ 事務所利用可能 ○ フリーレント ○ 保証会社利用可能 ○ 保証会社利用必須 ○ DIY可能 ○ トイレ(水洗) ○ 電気 ○ 水道(公営) ○ 排水(公共下水) |
| 情報更新日 | 2026-03-20 14:17:47 |
| お問い合わせ |
お問い合わせの際に 「駒止町2丁目倉庫 倉庫」 もしくは 「お部屋ID:5764464」 とお伝えいただくとスムーズです。
株式会社名古屋第一不動産
愛知県名古屋市千種区今池4丁目8番19号
052-731-4031
|

| 間取り | / [戸建] テナント 1F:50㎡ 2F:73㎡ 3F:73㎡ | ||
|---|---|---|---|
| 完成年月 | / 1973年05月 | ||
| 構造 | / 鉄骨造地上3階 | ||
| 入居可能日 | / 空室 | ||
| 総戸数 | / 1戸 | ||
| 契約形態 | / 普通借家 | ||
| 保証金 | / 3ヶ月 | ||
| 償却・敷引 | / 100% | ||
| 駐車場 | / 敷地内駐車場/空き1台/無料駐車場付 | ||
| 設備 | / ○ 事務所利用可能 ○ フリーレント ○ 保証会社利用可能 ○ 保証会社利用必須 ○ DIY可能 ○ トイレ(水洗) ○ 電気 ○ 水道(公営) ○ 排水(公共下水) | ||
| 備考 | / | ||
物件所在地:愛知県名古屋市北区駒止町2丁目
名城線「黒川」徒歩8分
300,000円
| ■管理費 | |
|---|---|
| ■敷金 | なし |
| ■礼金 | なし |
|
<その他費用> 保証会社:保険要加入 エイ・ワン少額短期保険 2年契約 初回保証委託料:総家賃の100%(更新料10,000円/年) 保険:保険要加入 エイ・ワン少額短期保険 2年契約 (税込/月額) |
|